Deze website maakt gebruik van cookies

Deze website gebruikt cookies en verzamelt daarmee informatie over het gebruik van de website onder andere om deze te analyseren en te verbeteren en voor social media. Wil je meer weten over deze cookies, lees dan onze privacy disclaimer en de uitleg over cookies
Door hiernaast op "Akkoord" te drukken, geef je aan akkoord te zijn met het gebruik van cookies en het verzamelen van informatie aan de hand daarvan door ons en door derden. Wil je niet alle soorten cookies toestaan, klik dan op "Cookie instellingen aanpassen".

Koningin Wilhelminaplein 158
Nieuw!
Terug Reageer

Koningin Wilhelminaplein 158 1062 KS Amsterdam

Huurprijs 

Kenmerken

Bouwvorm Bestaande bouw
Bouwjaar 2014
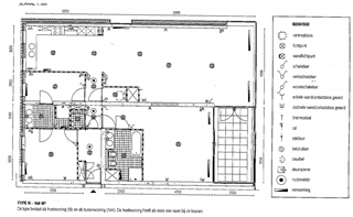
Woonoppervlakte 160 m²
Type woning tussenverdieping
Servicekosten € 110,- p/m
Aantal kamers 4

Locatie

Locatie naar boven

U vertrekt vanaf

Toon route